Details

Wohnbebauung Humboldtring, Potsdam

Wohnbebauung mit 141 Wohnungen
Potsdam, Humboldtring

BGF ca. 12.000m²
Grundstück ca. 4.200m²
Planungsbeginn:  2020

Auf einem freien und gut erschlossenen Baugrundstück nahe der Havel entsteht ein Neubauvorhaben mit 141 Mietwohnungen. Im ersten Obergeschoss werden zudem barrierefreie Wohnungen realisiert.
Eine attraktive Lage unweit der Innenstadt, des Hauptbahnhofs sowie des Havelufers und Park Babelsberg. Die öffentliche Verkehrserschließung erfolgt über die Sraßenbahnhaltestelle direkt vor der Tür.
Der längliche Baukörper wird optisch durch farbliche Akzente gegliedert, dies hebt die einzelnen Hauseingänge hervor und schafft einen harmonischen Rhythmus.
Insgesamt wird die Bebauung durch aneinandergereihte, in der Fassade ablesbare einzelne Mehrfamilienhäuser entsprechend der in Potsdam vorwiegend vorzufindenden Maßstablichkeit gegliedert.

Atzelbergerstraße

Planungsbeginn:  2018
Fertigstellung: 2021 

Auf dem Grundstück Atzelbergstraße 110 ist geplant, die eingeschossigen Lager- und Werkstattbaukörper abzureißen und an selbiger Stelle entlang der Atzelberg- Wilhelmshöherstraße einen mehrgeschossiges Wohngebäude mit Ladenflächen im Erdgeschoss zu errichten.  Die Gestaltung des Gebäudes nimmt Anklang an die bestehende kleinteilige Bebauung im Frankfurter Stadtteil Seckbach mit Mansarddach in Schieferdeckung sowie Fassaden mit vertikalen Fensteröffnungen.    

Rathaus Plaza Offenbach a. M.

Grundstücksfläche ca. 3.000 m²
Mietfläche ca. 10.000 m²
Einkaufsflächen ab 100 m²

Planungsbeginn: 2016
Fertigstellung: 2020

“Die Frankfurter Straße in Offenbach entwickelt sich als Haupteinkaufsstraße zunehmend positiv und gewinnt deutlich an Attraktivität und  Qualität.  Im Zentrum entsteht in bester Lage das “Rathaus Plaza”.   Der Bürobereich im 2. und 3. OG mit dem Mieter Regus wird die Anziehungskraft Offenbachs weiter erhöhen.  Durch dieses Neubauprojekt wird das Niveau des Shoppingangebots und die Aufenthaltsqualität der Innenstadt weiter ansteigen.”     Die Gestaltung der rund 60m langen Fassade greift optisch die Historie Offenbachs als Industriestadt auf und überführt die  industrielle Ästhetik in zeitgemäße, urbane und identitätsbildende Architektur.  Mitten in der Fußgängerzone entsteht ein einzigartiges Bauwerk, das dem Besucher neben der ansprechenden Erscheinung eine große Angebotsvielfalt auf hohem Niveau bietet.
Es wurde eine direkte Anbindung im Untergeschoss an das bestehende Rathaus Parkhaus geschaffen. Ein zusätzlicher Aufzug auf der Nordseite des Gebäudes ermöglicht nun den barrierefreien Zugang zu der öffentlichen Parkgarage.

Wohnen im Diakonissenareal

Frankfurt am Main Holzhausenviertel ehem.  Diakonissen-Krankenhaus
4 Mehrfamilienwohnhäuser und eine Kita U3 zweizügig  

Grundstück: 5.947 m²  
BGF gesamt oberirdisch: 10.615 m²  
BGF gesamt unterirdisch:  3.650 m² 
Planungsbeginn: 2015 
Fertigstellung: 2018/2019

Links:

Holzhausenstraße 72-84   
Städtebaulich bilden die einzelnen Bausteine ein  Gesamtgefüge, das sich entlang der Holzhausenstraße erstreckt, den Innenbereich schützt und durch Höhenzäsuren die Straßenansicht gliedert. Um ein einheitliches Bild entlang der Holzhausenstraße zu erreichen, passen sich die Neubauten in Höhe und  Gestaltung an die umgebende Bebauung an.

Fotografie: Thomas Eicken
  • Mehr

    In den Gebäuden Holzhausenstraße 72-74, 76, 78-82 und 84 werden insgesamt 66 Wohnungen, darunter 21 Wohnungen im Bauteil Holzhausenstraße 78-82 im Rahmen des Frankfurter Programms für familien- und     seniorengerechten Mietwohnungsbau errichtet. Die Richtlinien zur Vergabe von Wohnungsbau  Darlehen für den Mietwohnungsbau der Stadt Frankfurt werden erfüllt.  

    Das Grundstück „Diakonissenareal“ befindet sich im Frankfurter Nordend und wird von den Straßen Eschersheimer Landstraße, Cronstettenstraße und Holzhausenstraße umgrenzt. Im Rahmen der Umstrukturierung des Diakonissenareals verlagerten sich bestehende Nutzungen in neue und bestehende Gebäude. Zusätzlich entstanden neue Nutzungen entlang der Eschersheimer Landstraße, sowie einer Eckbebauung hin zur Cronstettenstraße. Der 3. Bauabschnitt umfasst, aufgrund struktureller Reformen der Diakonie-Kliniken, den Abbruch des Diakonissen Krankenhauses inkl. einem Teilerhalt der straßenseitigen  Bestandsfassade, welche durch Neubauten entlang der Holzhausenstraße, sowie zwei Neubauten im Innenbereich des Areals ergänzt wird.  Auf dem ehemaligen Krankenhausgelände ist ein Ensemble aus Wohngebäuden mit Miet – und Eigentumswohnungen geplant, welches durch eine Kindertagesstätte mit zwei U3 Gruppen ergänzt wird.

Wohnen im Diakonissenareal

Frankfurt am Main Holzhausenviertel ehem.  Diakonissen-Krankenhaus
4 Mehrfamilienwohnhäuser und eine Kita U3 zweizügig   

Grundstück: 5.947 m²  
BGF gesamt oberirdisch: 10.615 m²  
BGF gesamt unterirdisch: 3.650 m² 
BGF oberirdisch: 3.455 m² 
BGF unterirdisch:  1.750 m²

Links:
   
Holzhausenstraße 72-74   

Das Gebäude Holzhausenstraße 72-74 wird als 5-geschossiges Wohngebäude inklusive einer unterirdischen Tiefgarage und zum Wohngebäude zugehörige Kellerbereiche errichtet.  Die Nutzung Wohnen, umfasst 17 Wohneinheiten. Die Erschließung erfolgt über zwei separate Hauseingänge und Treppenhäusern.
Die Fassade des Hauses in der Holzhausenstraße 72-74 wurde mit Crailsheimer Muschelkalk geplant und von der Natursteinfirma Schön + Hippelein realisiert. Die Entwurfsidee der Fassade nimmt das Wechselspiel zwischen Natursteingesimsen und Putzflächen der historischen Gebäude in der Nachbarschaft auf.
Der Crailsheimer Muschelkalk der Natursteinwerke ähnelt der eleganten historischen Bausubstanz in diesem besonderen Viertel von Frankfurt, die uns als Architekten als Vorbild dienten.

Fotografie: Thomas Eicken

Wohnen im Diakonissenareal

Frankfurt am Main Holzhausenviertel ehem.  Diakonissen-Krankenhaus
4 Mehrfamilienwohnhäuser und eine Kita U3 zweizügig   

Grundstück: 5.947 m² 
BGF  gesamt oberirdisch: 10.615 m²  
BGF  gesamt unterirdisch:  3.650 m² 
BGF  oberirdisch: 2.100 m² 

Links:

Holzhausenstraße 76    
An der Holzhausenstraße 76 umfasst 10 Wohneinheiten. Das Wohngebäude ist in massiver Bauart geplant, dessen Dachform als Flachdach mit hochgezogener Attika ausgeführt wurde. Ein Penthaus mit Skydeck und Swimmingpool in hochwertiger Ausstattung wurde im obersten Geschoss realisiert. Die Natursteinfassade wurde in dem spanischen Kalkstein "Ocean Rosal" ausgeführt

Fotografie:  Thomas Eicken und David Straßburger

Wohnen im Diakonissenareal

Frankfurt am Main Holzhausenviertel ehem.  Diakonissen-Krankenhaus
4 Mehrfamilienwohnhäuser und eine Kita U3 zweizügig   

Grundstück: 5.947 m²  
BGF  gesamt oberirdisch: 10.615 m²  
BGF  gesamt unterirdisch: 3.650 m² 

Links:

Holzhausenstraße 78-82   
Das Gebäude Holzhausenstraße 78-82 wird als 5-geschossiges Wohngebäude inklusiver einer unterirdischen Tiefgarage errichtet. Weiterhin wird die ursprüngliche historische Bestandsfassade des ehemaligen Diakonissen-Krankenhauses vom Untergeschoss bis ins 2.Obergeschoss erhalten und in den Neubau integriert. Das nach dem Krieg realisierte Dachgeschoss wurde abgerissen. Zusätzlich wurden zwei Geschosse aufgebaut. Ein hohes Steildach aus Schiefer unterstreicht die Bedeutung dieses Baukörpers innerhalb des gesamten Ensembles.
Die Nutzung Wohnen umfasst 30 Wohneinheiten, wovon 21  Wohnungen im Rahmen des Frankfurter Programms für familien-und seniorengerechten Mietwohnungsbau realisiert werden. Fassade: Sandstein und integrierte rötliche Sandsteinelemente.

Fotografie: Thomas Eicken

Wohnen im Diakonissenareal

Frankfurt am Main Holzhausenviertel ehem.  Diakonissen-Krankenhaus
4 Mehrfamilienwohnhäuser und eine Kita U3 zweizügig   

Grundstück: 5.947 m²  
BGF  gesamt oberirdisch: 10.615 m²  
BGF  gesamt unterirdisch:  3.650 m² 
BGF  oberirdisch: 1.400 m²
BGF  unterirdisch: 1.900 m² 

Links:

Holzhausenstraße 84   
Das Gebäude Holzhausenstraße 84 wird als 5-geschossiges Wohngebäude mit 9 Wohneinheiten inklusive einer unterirdischen Tiefgarage und zum Wohngebäude zugehörige Kellerbereiche errichtet. In westlicher Richtung wurde an das Gebäude Holzhausenstraße 78-82 mit der bestehenden historischen Fassade angebaut.
Die Fassadengestaltung orientiert sich an den vorhandenen Bauten des Holzhausenviertels und greift die zur Jahrhundertwende üblichen klassizistischen Details wie Gesimse, Friesen und besondere Eingangsportale auf. Der gewählte Naturstein steht in seinem grünen Farbton im Kontrast zur Bestandsfassade (Haus 78-82) aus rotem Sandstein.

Fotografie: David Straßburger

Wohnbebauung Bertramstraße 2

Frankfurt am Main 
5 Mehrfamilienwohnhäuser mit Kita U3 und Ü3 sechszügig im Passivhausstandard  

BGF gesamt oberirdisch: 22.424 m²           
BGF gesamt unterirdisch: 7.244 m²
Anzahl der Wohneinheiten: 189                    
2-5 Zi Wohneinheiten: 53 m² - 130 m² 
Planungsbeginn: 2013                                
Fertigstellung: 2018  
LPH 5

Das Wohnungsbauprojekt “Wohnbebauung  Bertramstraße 2 ” wurde von den Architektur- büros AS&P -  Albert Speer &  Partner GmbH und Karl Dudler Architekten bis Abschluss der Genehmigungsplanung geplant.
Die Ausführungsplanung von sämtlichen Häusern wurde von VRL bearbeitet. Vier der Gebäude bilden mit dem im Süden angrenzenden Bestand einen Blockrand, das fünfte Gebäude liegt als Solitär im Innenhof. Die verputzte Lochfassade wird durch Gesimse und Streifen mit Kammzugputz horizontal gegliedert.  In den Erdgeschossbereichen ist die Fassade teilweise verklinkert. Die Staffelgeschosse sind alle deutlich zurückgesetzt und bieten so großzügig gestaltete Dachterrassen. Der halböffentlich angelegte Innenhof bietet Sitzmöglichkeiten, einen Spielbereich sowie den Freibereich der Kita.

Fotografie: Thomas Eicken

Sanierung Kirche

Frankfurter Diakonissenhaus   

Planungsbeginn: 2016
Fertigstellung: 2018   

"Äußerlich scheint alles wieder so zu sein wie es einst war, aber eigentlich ist die Kirche wie neu. Sie erstrahlt in hellen Farben und in moderner LED-Beleuchtung und neuer Fußbodenheizung, die Übertragungs- und Lautsprechertechnik ist auf neuestem Stand, die nicht mobilen Bewohnerinnen und Bewohner von dem Pflegeheim Nellinistift und Mutterhaus können jetzt in HD-Qualität an den  Gottesdiensten teilnehmen." Die Sanierung umfasst die Erneuerung der technischen Anlagen, Einbau einer Fußbodenheizung, neue LED Beleuchtung, neue Tontechnik, ein Behinderten WC, Sanierung der  Fassade und die neue Dacheindeckung in Schiefer.

Fotografie: Thomas Eicken

Wohn- und Geschäftshaus  Hessestraße 1-3

Planungsbeginn: 2015
Fertigstellung: 2019
Grundstücksgröße: 11.152.00 m²
Tiefgarage: 1030.89 m²     

Gebäudesanierung:  Das Bestandsgebäude wurde im Jahre 1958  errichtet. Durch die Maßnahme wird eine Gesamtaufwertung der Liegenschaft erzielt.   An das fünfgeschossige Wohnhaus in der  Hessestraße 1 – 3 sollen zusätzlich Balkone angebaut werden.  Im Gebäude befindet sich im Erdgeschoss ein REWE-Supermarkt, in den weiteren Geschossen befinden sich 1-3 Zimmer Wohnungen. 

B&B Hotel

Mombacher Straße, Mainz 

Nettogrundfläche: 2.894,75    m²
Bruttogeschossfläche: 3.596,76 m² 
Bruttorauminhalt: 11.117,08     m²
Anzahl der Zimmer: 119     
Planungsbeginn: 2015
Fertigstellung: 2017

Auf dem ca 4,6 ha großen Areal ist ein Mix aus Bürogebäuden, Wohnungen für Studierende sowie am Beginn des Grundstücks zwei Hotelbaukörpern vorgesehen.  Das Areal liegt in unmittelbarer Nähe zum Mainzer Hauptbahnhof und der Mainzer Neustadt. Die Hotelbaukörper bilden den städtebaulichen Auftrakt der Gesamtentwicklung. Beide Baukörper orientieren sich in der Fassadengestaltung an dem vorhandenen historischen Backsteingebäude und bilden somit ein städtebauliches Ensemble.  Aufgrund der gewählten Gebäudedisposition entstehen spannende Blickbeziehungen entlang der neuen Planstraße bis zum Bahnhofsgebäude.

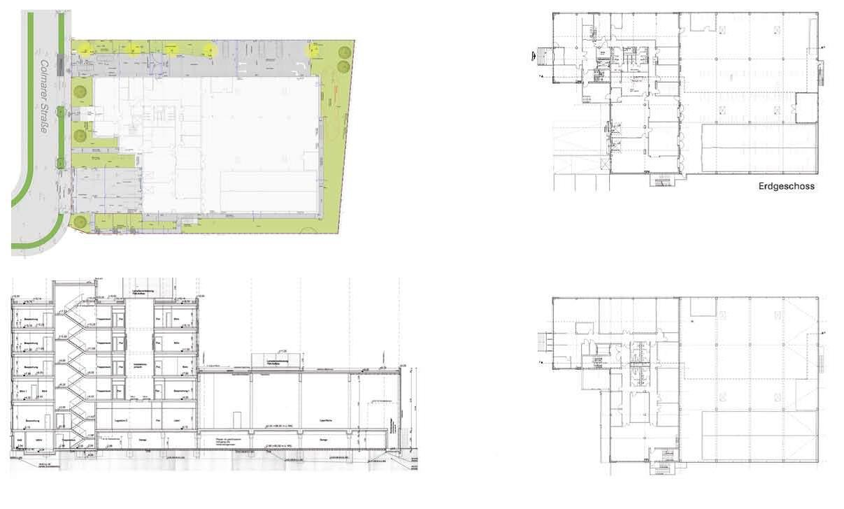
Grifols

Niederrad 

Grundstück:4.193 m²
BGF DIN 277: 7.839 m²               
BGF oberirdisch: 5.727 m²
BGF unterirdisch  inkl. Garage: 2.112 m² 
Planungsbeginn: 2015
Fertigstellung: 2017   
Ausführungsplanung von VRL         

Das Grundstück liegt in Frankfurt am Main, Schwanheim in unmittelbarer Nähe zur Bürostadt Niederrad, hat eine Größe von 4.193 m² und wird von der Colmarer Straße erschlossen. Es entsteht ein  Neubau eines Bürogebäudes mit rückseitig angeschlossener Lagerhalle und einer offenen Großgarage.  Das Bürogebäude verfügt über ein  Untergeschoss, ein gegenüber dem Straßenniveau um ca. 1,10 m erhöhtes EG und 4. weitere Obergeschosse. Die Lagerhalle ist eingeschossig auf der Ebene des Erdgeschosses und die Garage befindet sich im UG unterhalb des Lagers sowie unter Teilen des Bürogebäudes. Im UG sind außerdem ein Archiv für die Büroflächen, ein Müllraum sowie technische Betriebsräume untergebracht.

Wohngebäude Passivhaus, Ferdinand-Happ-Straße

Frankfurt am Main 

Bruttogeschossfläche ca. 13.000 m²
Anzahl der Wohneinheiten 90
Hauptbaukörper Wohneinheiten 74
Solitärgebäude Wohneinheiten 16
Tiefgaragenstellplätze 57
1-5 Zimmer-Wohneinheiten 20-200 m²

Das Projekt EASTGATE Living liegt in einem der lebendigsten und abwechslungsreichsten Viertel Frankfurts. Der Baukörper entlang der Ferdinand-Happ-Straße ist gekennzeichnet durch eine differenziert gestaltete Fassade in unterschiedlichen Materialien mit Vor- und Rücksprüngen, die die einzelnen Häuser erkennen lassen. Bodentiefe Fenster geben der Fassade eine vertikale Ordnungsthematik. Die gewählte Gebäudetypologie nimmt in ihrer Breite die Abmessungen der in der Nachbarschaft vorhandenen bestehenden Mietshäuser auf. Im Inneren des Grundstückes entsteht ein Solitär. Die Fassade wird ebenfalls mit vertikalen Fensteröffnungen ausgebildet. Der Sockel wird in Bossenputzweise vorgesehen.  Es entsteht ein eleganter Baukörper in einem ruhigen Freiraum.

Wohnungsbau Cronstettenstraße

Frankfurt, am Main

Planungsbeginn: 2014
Fertigstellung: 2016

Der Bauherr hat sich entschlossen das bestehende Bürogebäude in ein Wohngebäude mit Eigentumswohnungen umzuwandeln. In einer der besten Wohnlagen in Frankfurt entsteht ein hochwertiges Wohnungsbauvorhaben mit 12-14 Wohneinheiten mit unterschiedlichen Wohngrößen.

Mitsubishi MMD Automobile

Flörsheim

2016

Der Automobil- und Weltkonzern Mitsubishi MMD erwägt einen Zusammenschluss verschiedener Unternehmensbereiche am Standort Flörsheim. Im Zentrum der Überlegungen steht ein für den Pkw-Bereich vorgesehener Showroom mit Außenwirkung.

Frankfurter Diakonissenareal *

*Referenzen von Architekt Carsten Volleth in der Zeit von 1998 - 2014 bei B&V Braun Canton Volleth Architekten GmbH

2. Bauabschnitt Wohngebäude, Kindertagesstätte, Service-Wohnen 
Passivhaus 

BGF Gesamt: ca. 16.408 m²    
BRI Gesamt: ca. 59.225 m³ 
Planungsbeginn: 2006
Baubeginn: 2009                           
Fertigstellung: 2017

Hocheffiziente Gebäudetechnik
Gasbrennwerttechnik 38 Erdsonden 
Heizwärmebedarf: 14kWh/(m²a)
Kühlung: 0,7 kWh/(m²a)
Primärenergie-Kennwert: 17 kWh/(m²a)
BAUTEIL B 30 Mietwohnungen
BAUTEIL C 51 Service-Wohnungen
51 Barrierefreie Wohnungen (DIN 18025/2) 

Nachdem durch den Beschluss zur umfangreichen Umstrukturierung des Frankfurter Diakonissenhauses das neue Plegeheim gebaut wurde und das "neue Mutterhaus" in dem unter Denkmalschtz stehenden historischen Gebäude in der Cronstettenstraße durch die Schwesternschaft bezogen wurde, errichtete die ABG (Frankfurter Aufbau AG) entlang der Escherheimer Landstraße zwei große Mehrfamilienhäuser. 

Fotografin: Lisa Farkas
  • Mehr

    Im nördlichen Grundstücksbereich, auf dem zuvor das "alte Mutterhaus" der Schwesternschaft stand, wurde ein Neubau entworfen, der in seiner Größe und Fassadengestaltung dem ehemaligen Gebäude entspricht. 

    Auf 5 Geschossen wurden 30 Mietwohnungen im Passivhausstandard realisiert. Zur Hofseite in das gartenähnliche Areal wurden die Balkone angeordnet und im südlichen Baukörper wurde im EG und 1. OG eine Kita für über 100 Kinder errichtet.

    In den oberen Geschossen befinden sich seniorengerechte Wohnungen mit barrierefreien Bädern. Eine Tiefgarage im Untergeschoss dient dem gesamten Areal, wodurch der parkähnliche Charakter des Blockinneren autofrei gestaltet werden konnte. 

    Im Zusammenspiel zwischen dem ersten und zweiten Bauabschnitt entsteht ein interessantes und sinnvolles Nutzungsgemenge aus Mietwohnungen, seniorengerechten Wohnungen, Kindertagesstätte, Altenpflegeheim, Kirche und Schwesternschaft, das dem gesamten Stadtviertel zu Gute kommt. 


Loftwerk Eschborn*

*Referenzen von Architekt Carsten Volleth in der Zeit von 1998 - 2014 bei B&V Braun Canton Volleth Architekten GmbH für Leistungsphase 1 - 4, Leistungsphase 5 wurde von WRL Architekten übernommen

Neubau-Ensemble von zwei  Büro- und Geschäftshäusern 
Zertifizierung: Silber DGNB 

Grundstück: ca. 7.145 m²    
Bruttogeschossfläche: ca. 14.000 m²   
Bruttorauminhalt: ca. 84.000 m²
Mietfläche: ca. 21.500 m²
Stellplätze unterirdisch: 238 Stück
Stellplätze obererirdisch: 33 Stück 
Planungsbeginn: 2009
Baubeginn: 2011                           
Fertigstellung: 2013  

Die städtebauliche Konzeptidee unterscheidet sich von den bereits realisierten Bürogebäuden auf dem Helfmann-Park Areal in Eschborn dadurch, dass die auf der Grundstücksparzelle zulässige Baumasse auf zwei Baukörper aufgeteilt wurde.
Dadurch entsteht eine Straßenraumerweiterung in der Achse der Verlängerung der Ginnheimer Straße. Die gewählte Gebäudeform ermöglicht eine großzügige Aufenthaltsqualität auf dem halböffentlichen Platz. Der Platz wird in den Pausen genutzt und dient der fußläufigen Erschließung der von der Straße abgewandten Bürobereiche.
Der erste Bauabschnitt umfasst 8000 m² auf 6 Geschossen verteilt, der zweite Bauabschnitt hat eine Größe von 6000 m² auf 7 Geschossen. Eine Tiefgarage mit 137 Stellplätzen auf 2 Ebenen verbindet die beiden Bauteile im Untergeschoss. Im 3. Obergeschoss wurde eine Brücke entworfen, die auch die Bürobereiche untereinander verbindet. 
  • Mehr

    Loftwerk ist eine Idee, die gemeinsam mit dem Bauherren Hochtief Projektentwicklung entstand, steht u. a. für das Thema Freiraum sowohl im Innen- als auch im Außenbereich und im Zusammenhang mit der auf dem Grundstück ehemaligen Nutzung des Areals als Ziegelei. Das Thema Loft steht für ein ganz besonderes Arbeits-, Wohn- und Lebensgefühl. Es versprüht den Charme historischer Industriestätten mit großen offenen Räumen. Hohe Geschosshöhen, eine klar strukturierte Fassade, industriell anmutende Materialien und Oberflächen und eine individuelle  Grundrissgestaltung liegen dem Konzept zugrunde. Der Entwurfsgedanke Loft steht für eine unmodische - langlebige Architektursprache. Wir verbinden dies  u. a. mit einer klaren Gliederung von wiederkehrenden Fensterelementen. Eine gleichmäßige Hülle umschließt den Raum. Robuste Materialien entsprechen dem industriellen Charakter eines historischen Lofts.

Goldbergweg 85, Frankfurt am Main*

*Referenzen von Architekt Carsten Volleth in der Zeit von 1998 - 2014 bei B&V Braun Canton Volleth Architekten GmbH

BGF Gesamt: ca. 10.500 m²
BRI: ca. 28.800 m³
Planungsbeginn: 2009
Baubeginn: 2011
Fertigstellung: 2012  

Die Liegenschaft Goldbergweg 85 in Frankfurt am Main wurde 1976 als Altenwohnanlag geplant. 1995 wurde das Erdgeschoss in ein Pflegeheim umgebaut.
In einer neuen umfassenden Umbausituation wurde das erste Obergeschoss ebenfalls für Pflegebedürftige umgebaut.
Der Charakter des Gebäudes wandelte sich durch die Umgestaltung der Fassaden - die zuvor horizontal angeordneten Fensteröffnungen werden durch vertikale Fenster ersetzt. Neben der gestalterischen „Umwandlung“ des Gebäudes wurde auch die technische Ausrüstung inkl. Wohnraumlüftung und einer Pelletanlage neu konzipiert.
Grundlage war die Handlungsempfehlung zum vorbeugenden Brandschutz für den Bau und Betrieb von Nutzungseinheiten mit Gruppenbetreuung in Altenheimen.

Bürogebäude Stiftung Waisenhaus*

*Referenzen von Architekt Carsten Volleth in der Zeit von 1998 - 2014 bei B&V Braun Canton Volleth Architekten GmbH

Neubau eines Betreuungszentrum für die Stiftung Waisenhaus
Erstes zertifiziertes Büro-Passivhaus in  Frankfurt a.M. | Bleichstrasse 8 und 10  

Grundstück: ca. 2.618 m²
BGF Oberirdisch: ca. 7.400 m²   
BGF Unterirdisch: ca. 2.500 m²
Bruttorauminhalt: ca.  30.000 m³
Mietfläche: ca. 6.100 m² 
Planungsbeginn: 2008
Baubeginn: 2009                            
Fertigstellung: 2011
Bausumme: 17 Mio €
Objektplanung: LPH 1-9 
Hocheffiziente Gebäudetechnik
Pelletheizungsanlage
Absorptionskältemaschine
Heizwärmebedarf: 14 kWh/(m²a)
Kühlung: 14 kWh/(m²a)
Primärenergie-Kennwert: 106 kWh/(m²a) 

An der stark befahrenen Bleichstraße unmittelbar in der Frankfurter Innenstadt entstand das neue Betreuungszentrum für die Stiftung Waisenhaus. In einem VgV Verfahren konnte durch die gemeinsam mit den Fachplanern entwickelte Konzeption des Gebäudes ein Passivhaus als Bürohaus entwickelt werden. Das Gebäude wurde vom Passivhaus Darmstadt als erstes Bürohaus in Frankfurt zertifiziert.
Die Natursteinfassade besteht aus einem Crailsheimer Muschelkalk mit unterschiedlicher Oberflächenausführung. 2009 wurde das Gebäude vom Bundesministerium für Wirtschaft (BMWi) für energieoptimiertes Bauen mit einem Preis gewürdigt.
Während der Bauarbeiten fand man Teile alter Wallanlagen und Stadtbefestigungen, die mit der Denkmalschutzbehörde in das Planungskonzept integriert wurden, sodass die Anlagen zumindest in Teilen der Öffentlichkeit zugänglich sind.

Hertie Frankfurt Höchst*

*Referenzen von Architekt Carsten Volleth in der Zeit von 1998 - 2014 bei B&V Braun Canton Volleth Architekten GmbH

Geschäftsgebäude Frankfurt am Main 

Grundstücksfläche: ca. 4.400 m²
BGF: ca. 9.138 m²
BRI: ca. 69.000 m³               
Planungsbeginn: 2007
Baubeginn: 2008                            
Fertigstellung: 2010 
Mieter: C&A, REWE, Postbank, Dm-Drogerie, Tedi, Kik, ELLEgance 

Auf dem ehemaligen durch den Hertiekonzern genutzten Areal dem ehemaligen „Hertiekaufhaus“ entstand ein Neubau als Geschäftshaus mit Einzelhandelsnutzungen.
Das Grundstück liegt in der Fußgängerzone von Frankfurt Höchst in der Königsteinerstraße. Der zweigeschossige Baukörper mit den Nutzungen Drogerie, Post und Bekleidung im Erdgeschoss, sowie weiteren Bekleidungsnutzungseinheiten im Obergeschoss wird von den Bewohnern in Höchst gut angenommen. Großzügige Verglasungen werden gegliedert, sodass keine Glasfront in der Fußgängerzone entsteht, sondern die jeweiligen Nutzungseinheiten sich auch in der Fassade darstellen können. Die Natursteinfassade wurde mit einem Crailsheimer Muschelkalk verkleidet. Dieses Material wurde in Anlehnung an die bestehende Haussubstanz, welche ebenfalls mit Muschelkalknaturstein ausgeführt wurden, ausgewählt. In der Mitte der Fassade befindet sich eine großzügige Erschließungshalle für das erste Obergeschoss.

Frankfurter Diakonissenhaus*

*Referenzen von Architekt Carsten Volleth in der Zeit von 1998 - 2014 bei B&V Braun Canton Volleth Architekten GmbH

Altenpflegeheim, Wohngebäude für Diakonissenschwestern, Erweiterungsflächen, Verwaltung 

Bruttogeschossfläche ca. 13.200 m²
Bruttorauminhalt ca.  47.700 m³ 
Planungsbeginn: 2006
Baubeginn: 2007
Fertigstellung: 2009    
Altenpflegeheim: 9 Wohngemeinschaften 81 Bewohnerzimmer 99 Betten in Einzel und Doppelzimmern 

Das Areal des Frankfurter Diakonissenhauses befindet sich im Frankfurter Stadtteil Nordend.
Der Diakonissenverein zu Frankfurt wurde 1870 gegründet. Die Diakonissengemeinschaft bezog 1874 an der Eschersheimer Landstraße ein Mutterhaus mit Krankenhaus und Kapelle.  In der Folgezeit entstanden auf dem Gelände Altenheime, Kindergärten und Hort, sowie weitere Einrichtungen. Im Rahmen einer Umstrukturierung und aufgrund technischer Mängel der bestehenden Bausubstanz wurde durch weitreichende Überlegungen entschieden Teile des Grundstücks zu veräußern und aus dem Erlös der Grundstücksveräußerung das Pflegeheim und Mutterhaus zu sanieren.
  • Mehr

    Das unter Denkmalschutz stehende Nellinistift (Architekt Bruno Paul) wurde 1913 errichtet und dient nach umfangreicher Sanierung und Rekonstruktion als „neues Mutterhaus“ für die Schwesternschaft.

    Neben dem historischen Bau wurde ein Anbau errichtet in dem die Wohnungen der Schwestern sowie zwei Veranstaltungsräume mit Andachtsraum angeordnet wurden.

    Eine in der Formensprache zurückhaltende Brücke mit einer Holzverkleidung verbindet die Bauteile.

    Als dritter Baustein dieser ersten Baumaßnahme auf dem Areal wurde ein Pflegeheim für über 90 Bewohner in Hausgemeinschaften von je 12 Personen inkl. großer Kücheneinrichtung und weiteren Nebenräumen errichtet.

    Das Konzept basiert auf einem Zusammenspiel von drei Baukörpern, die durch unterschiedliche Farbakzente ablesbar als drei Häuser wahrgenommen werden, die durch eine Erschließungsspange miteinander verbunden sind. Ein über drei Ebenen angeordneter Luftraum im Eingangsbereich und eine großzügige Verglasung ermöglichen den Blick bis zur Cronstettenstraße.

    Die Neubauten wurden im KfW 40 Standard errichtet. Sämtliche Gebäude werden über eine Pelletanlage mit Wärme versorgt. 

Kaiserstraße 75-77*

*Referenzen von Architekt Carsten Volleth in der Zeit von 1998 - 2014 bei B&V Braun Canton Volleth Architekten GmbH

Büro- und Geschäftshaus 
Frankfurt am Main   

Grundstück: ca. 1.390 m²    
BGF Gesamt oberirdisch: ca. 7.500 m²
BRI Gesamt: ca. 31.200 m²
Mietfläche: ca. 5.790 m²
Planungsbeginn: 2006                       
Fertigstellung: 2007-2008  
Die Kaiserstraße in Frankfurt führt vom Hauptbahnhof zur Hauptwache. In Sichtweite zum Hauptbahnhof stand viele Jahre lang eine Immobilie, die mit einer Plane verdeckt wurde ungenutzt als Bauruine. Der Bauherr entschied eine Büronutzung als Neubau hinter der unter Denkmalschutz stehenden Fassade zu errichten. In Abstimmung mit der Denkmalschutzbehörde wurde die Fassade mit neuem, dem Bestand ähnelnden Naturstein ergänzt sowie die Farbe der Fenster ausgewählt.
Im Erdgeschoss entstanden Einzelhandelsflächen und in den Obergeschossen hochwertige Büro- und Konferenzbereiche.
Die für den Altbau typischen Geschosshöhen führen dazu, dass das Gebäude als Hochhaus bauordnungsrechtlich eingestuft wurde.

Kronzprinzbau*

*Referenzen von Architekt Carsten Volleth in der Zeit von 1998 - 2014 bei B&V Braun Canton Volleth Architekten GmbH

Büro- und Geschäftshaus Stuttgart 
Realisierungswettbewerb 1. Preis 
Deutscher Natursteinpreis 2009, Lobende Erwähnung 
BDA Auszeichnungen guter Bauten 2008 
Hugo-Häring-Preis 2008 

Grundstück: ca. 4.327 m²    
GBF Gesamt: ca.44.897 m²    
BRI Gesamt: ca.147.408 m²
Mietfläche: ca. 27.177 m² 
Planungsbeginn: 2003                            
Fertigstellung: 2007  

Das Konzept zum Kronprinzbau, unmittelbar in der Fußgängerzone in bester Geschäftslage in Stuttgart gelegen, resultiert aus einem gewonnenen Architekten Wettbewerb.
Der das Gebäude prägende Naturstein, ein Crailsheimer Muschelkalk, entspricht dem Naturstein des Hauptbahnhofs in Stuttgart. Eine gleichmäßige Gliederung der Fassade mit wiederkehrenden Fensteröffnungen erwirkt einen prägnanten Stadtbaustein am kleinen Schlossplatz. Im Erdgeschoss befinden sich hochwertige Einzelhandelsnutzungen, die Obergeschosse dienen Büro- und Konferenzbereichen.

Hyundai Motor Europe*

*Referenzen von Architekt Carsten Volleth in der Zeit von 1998 - 2014 bei B&V Braun Canton Volleth Architekten GmbH

Neubau der Europazentrale
Offenbach am Main
Büro - und Ausstellungsgebäude

Bruttogeschossfläche (oberirdisch) ca. 20.850 m²
Bruttorauminhalt ca. 93.420 m³
Planungsbeginn: 2004
Baubeginn: 2005
Fertigstellung: 2006

An einem der meist befahrensten Knotenpunkte im Rhein-Main Gebiet, dem Kaiserleikreisel, mit Sichtbeziehung zur stark befahrenen Autobahn A661 befindet sich das Grundstück der neuen Europazentrale der Hyundai Motor Europe GmbH.
Büronutzung sowie eine große Ausstellungshalle und Fahrwerkstätten sind in der Europazentrale von Hyundai integriert.
Als erster Bauabschnitt in L-Form mit vorgesetzter Ausstellungshalle vollständig verglast mit einem gut sichtbaren Grundstück stellt das Gebäude den Anfang einer Entwicklung des gesamten Kaiserlei Areals zwischen Offenbach und Frankfurt dar.

Unfallkasse Hessen*

*Referenzen von Architekt Carsten Volleth in der Zeit von 1998 - 2014 bei B&V Braun Canton Volleth Architekten GmbH

Bürogebäude Frankfurt am Main, Leonardo-Da-Vinci-Allee

BGF oberirdisch: 9.300 m²
BGF unterirdisch: 4.600 m²
BRI oberirdisch: 34.000 m³                 
BRI unterirdisch: 17.000 m³ 
Bewerbungsverfahren 1. Preis 
Planungsbeginn: 2003                            
Fertigstellung: 2005  

Die Unfallkasse Hessen – ein Gebäude mit hohen technischen und gestalterischen Ansprüchen als Stadtbaustein für den Rebstockpark in Frankfurt am Main. Eine hochwertige Natursteinfassade mit einem Fenster/Glasanteil von nur 50 % stellt die Grundlage für eine energetisch hochwertige Fassade mit geringem Transmissionswärmeverlust dar.

Haustechnik:
68 Erdsonden unterstützen die Wärmepumpe bei der Wärme- bzw. Kälteerzeugung.
Der Wärmeaustausch erfolgt über die Betondecken. In der Fassade integrierte Zuluftgeräte in jeder Fensterachse (297 Zuluftboxen) ermöglichen eine Luftwechselrate von 40 m³/Person. Durch die gewählte Anordnung der Luftboxen konnte auf eine konservative Kanalführung verzichtet werden und damit auch die Geschosshöhen optimiert werden.

Hanauer Landstraße 172*

*Referenzen von Architekt Carsten Volleth in der Zeit von 1998 - 2014 bei B&V Braun Canton Volleth Architekten GmbH

Frankfurt am Main

BGF: 5.800 m²
Oberirdische Vollgeschosse: 7
Untergeschosse: 2
Planungsbeginn: 2000                          
Fertigstellung: 2004  

Einer der ersten Bausteine in der Entwicklung der Hanauer Landstraße in Frankfurt ist das Gebäude Hanauer Landstraße 172. Der als Abschluss und als Eckgebäude zur Schwedlerstraße angeordnete städtebauliche Hochpunkt ist für Autofahrer von Osten kommend sehr markant.
Eine Eingangshalle über sechs Geschosse sowie ein zweigeschossiger „Monitor“ mit hochwertiger Klinkerfassade prägen das Carrée.
Im Erdgeschoss ist Einzelhandelsnutzung denkbar, Obergeschosse teilen sich in je zwei Büroeinheiten. Die industriell geprägte Hanauer Landstraße bildet die Vorgabe für die Fassade. Roh belassene Betonelemente im Inneren des Gebäudes erinnern an Fabriketagen und Lofts.

Wohngebäude auf der Mole*

*Referenzen von Architekt Carsten Volleth in der Zeit von 1998 - 2014 bei B&V Braun Canton Volleth Architekten GmbH

Umbauter Raum                                             
Haus Mainside 2: 17.860 m³
Haus Mainside 3: 17.300 m³
Haus Mainside 4: 17.300 m³ 

Bruttogeschossfläche
Haus Mainside 2 - UG: 1.380 m²
Haus Mainside 2 - OG: 3.820 m³
Haus Mainside 3 - UG: 1.380 m²                        
Haus Mainside 3 - OG: 3.810 m²
Haus Mainside 4 - UG: 1.380 m²
Haus Mainside 4 -  OG: 3.810 m²

Wohnfläche
Haus Mainside 2 (26 WE): 3.080 m²
Haus Mainside 3 (30 WE): 3.110 m²
Haus Mainside 4 (26 WE): 3.050 m² 

Planungsbeginn: Dezember 1999    
Baubeginn: März 2001
Fertigstellung: März 2004

Auf dem Areal  des Frankfurter Westhafens entsteht ein neuer Stadtteil mit insgesamt 800 Wohnungen und Büroraum für 3500 Arbeitsplätze. Das städtebauliche Leitmotiv ist, ein urbanes Quatier zu schaffen, das Arbeiten und Wohnen in moderner Weise verbindet und höchste Lebensqualität bietet. Das “Mainside”- Projekt die Bebauung auf einer alten Mole- hat dabei im Gesamtkonzept einen besonderen Stellenwert. Auf der Mole, die den zukünftigen Freizeithafen und den Main trennt, nur erschlossen, durch eine Aliegerbrücke, entstehen vier Zwillingsgebäude (Mainside 1-4) mit jeweils eigenständigem Charakter, die etwa 8 Meter ins Hafenbecken hineinragen. Die unmittelbare Lage an Hafen und Fluss wird durch die Option auf einen eigenen, den Häusern direkt zugeordneten Bootsliegenplatz in ihrem Reiz noch erhöt.  Wohnungsgrößen bewegen sich von 55 - 140 m² auf einer Ebene oder als Mainsonette. Die Penthouse-Wohnungen sind 220 m² groß und haben zwei großzügige Dachterrassen mit einem freien Blick auf die Frankfurter Skyline und die weite Flusslandschaft vom Main.

KPM Berlin*

*Referenzen von Architekt Carsten Volleth in der Zeit von 1998 - 2014 bei B&V Braun Canton Volleth Architekten GmbH

Bürogebäude für die Bundesgesundheitsverbände

Berlin - Charlottenburg

Grundstücksgröße 7.265 m²
BGF oberirdisch 12.119 m²
BGF unterirdisch 4.873 m²
BRI incl. UG 61.055 m³
Planungsbeginn: 2001
Baubeginn: 2002
Fertigstellung: 2004

Die städtebauliche Form dieses siebengeschossigen Bürogebäudes ging aus einem Wettbewerb hervor.
Zusammen mit dem Nachbargebäude wird es die neuen Bundeszentralen der Kassenärztlichen Bundesvereinigung, der Deutschen Krankenhaus-gesellschaft, sowie der Bundesärztekammer aufnehmen.
Die Bürobereiche der beiden Gebäudeflügel werden durch einen zweigeschossigen Flachbau mit flexibel teilbaren Konferenzsälen und einem großzügigen Foyer verbunden.
Eine zweigeschossige Tiefgarage wird von den Verbänden gemeinsam genutzt.